Вернуться назад

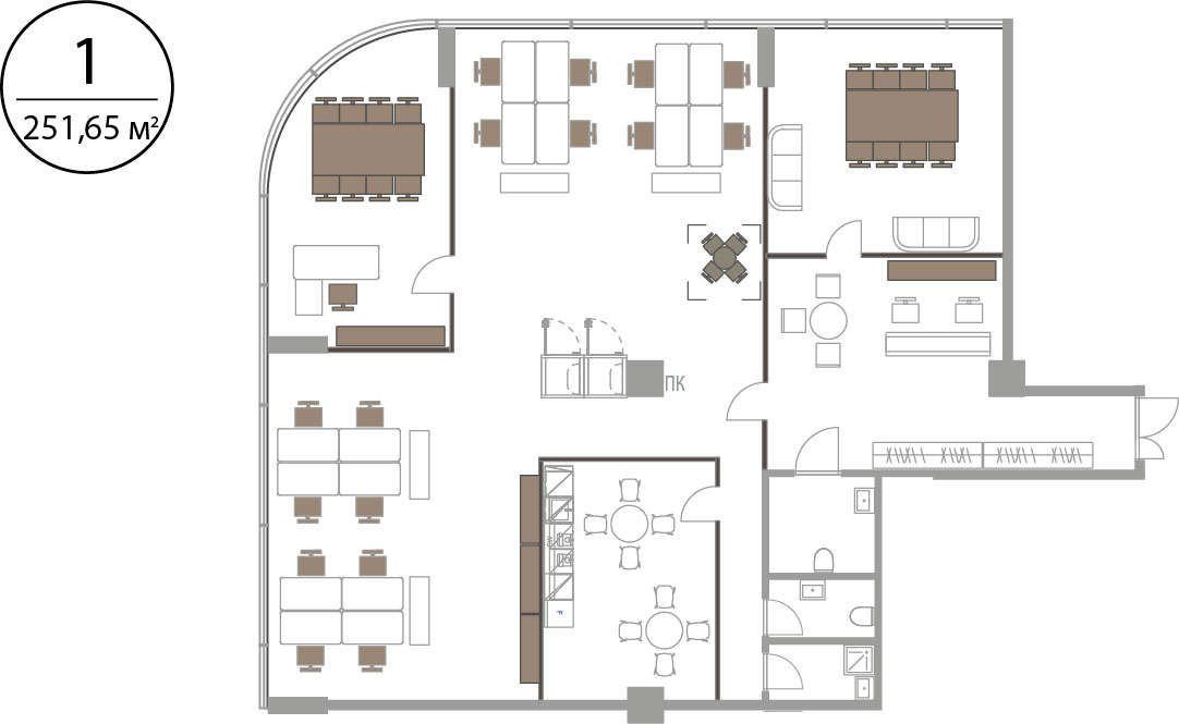
№ 01-02-01

  • Код объекта 01-02-01
  • Адрес 2-ая Магистральная, вл. 3, корпус А
  • Тип объекта Офис
  • Подтип объекта офис
  • Состояние объекта Свободно
  • Этаж 2 / 17
  • Площадь 251,65 м2
  • Стоимость м2 378 000 ₽
  • Видовые характеристики Москва-Сити
  • Мокрая точка Да
  • Условия оплаты Первоначальный взнос 30%, рассрочка «0», возврат НДС с каждого платежа
  • Стоимость 95 123 700 ₽
architecture landscaping parking transport
Загрузка
Меню
LIGHT CITY
Получить консультацию